UMBAU UND SANIERUNG DER JUGENDBURG HOHENSOLMS MIT KULTURZENTRUM REGENBOGENHALLE
BAUHERR:
EV. KIRCHE IN HESSEN UND NASSAU
Aufgabe
Sanierung und Modernisierung der denkmalgeschützten Burg Hohensolms
mit An- und Umbau einer Zehntscheune zum Kulturzentrum
Regenbogenhalle
Konzeption
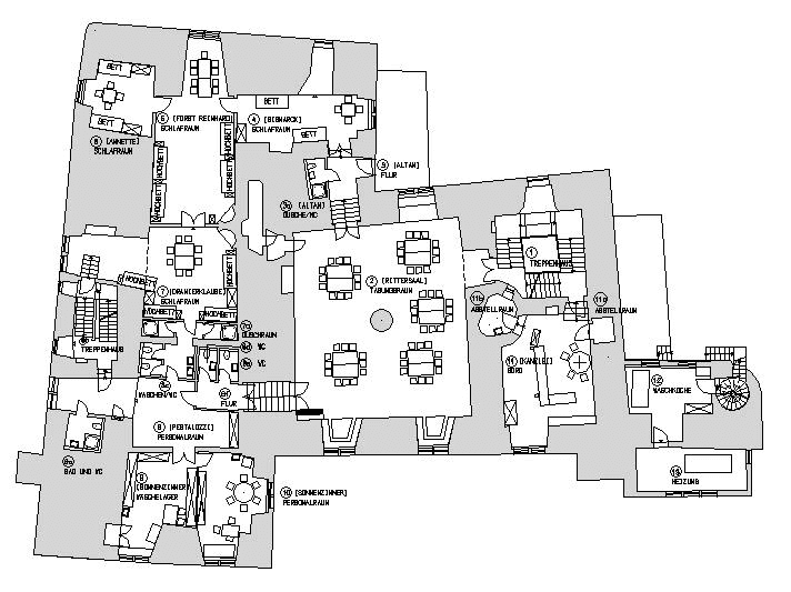
Die als Ev. Jugendbildungsstätte genutzte und aus dem 14. Jahrhundert stammende Burg Hohensolms war im Hinblick auf eine zeitgemäße Nutzung zu sanieren.
Soweit möglich wurden alle alten historischen Bauteile bewahrt und fachgerecht restauriert. Alle erforderlichen neuen Bauteile und statischen Elemente wurden als deutlich zum 21. Jh. gehörend gestaltet, wodurch die Entstehungszeit ablesbar bleibt. Hierbei wurden bewusst „moderne Materialien“ wie Stahl und Glas und die Detaillierung unserer Architekturepoche, in Verbindung mit den auch früher schon beim Bau der Burg verwendeten Hölzern und Natursteinen verwendet. Hierdurch entstand ein besonderes Spannungsfeld zwischen alt und neu.
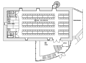
Das bisher ungenutzte Stall- und Scheunengebäude „Regenbogenhalle“ wurde zur Vervollständigung des Bildungsangebots zum Kulturzentrum mit Tonstudio,
Räumen für Musikproben und Besprechungen, „Internetcafé“ und einem Saal ausgebaut. Hierin sind verschiedene Nutzungen wie Musik- und Theateraufführungen, Vorträge und Kongresse möglich. Zur Erschließung der bisher nicht intern verbundenen Geschosse wurde ein Foyer mit Treppenhaus, Aufzug und Begegnungszone angebaut..
Im Zuge der Sanierung wurden folgende Veränderungen vorgenommen:
- Das Dach des Burghauptgebäudes mit einem Volumen von 4.400 m³, wurde in großen Bereichen neu eingedeckt.
- Die Holzkonstruktionen wurden vom Zimmermann grundsaniert.
- Die gesamte Decke zum Dachboden wurde wärmegedämmt.
- Es wurden neue Wände eingezogen.
- Die Wasser- und Abwasserleitungen wurden ausgetauscht.
- Sämtliche Sanitärbereiche wurden erneuert, die Anzahl der Duschen und WC’s wurde vervierfacht.
- Alle Stark- und Schwachstromkabel wurden erneuert.
- In allen WC’s und Nasszellen wurde ein Lüftungssystem eingebaut.
- Es wurden insgesamt weit über 200 Fenster erneuert.
- Alle Böden wurden erneuert, teilweise ausgetauscht.
- Das gesamte historische Treppenhaus wurde restauriert, die Barock-Schnitzereien des Treppengeländers wurden vom Restaurator teilweise neu angefertigt (dafür wurde das Holz der alten Treppenstufen benutzt).
- Alle Treppenstufen wurden erneuert.
- Die alten Türen wurden aufgearbeitet, defekte Türen wurden ersetzt.
- Alle Holzvertäfelungen wurden repariert und teilweise nachgeschnitzt.
- Die gesamte Beleuchtung wurde erneuert.
- Alle Innenwände wurden neu gestrichen.
- Der Außenbereich des Burghofs und das Hofgut wurden gepflastert.
- Im Burggraben wurden Wege, Parkplätze und ein Rasenschach angelegt.
- Die Schlaf- und Werkräume wurden neu möbliert und ausgestattet.
- Es wurde eine Brandmeldeanlage eingebaut.
- Die Regenbogenhalle wurde vollkommen neu ausgebaut.
- Es wurde ein Glasvorbau mit Treppe, Aufzug und Foyer angebaut.
















